Eigentumswohnung mit GARTEN und Terrasse zur Selbstnutzung | Nähe Klinik
Kaufpreis
142.000 €
Linda Saalmann-Bäumer
Ihre Ansprechpartnerin
Objektbeschreibung
Wohnen mit Terrasse & eigenem Garten – Charmante Eigentumswohnung in ruhiger Lage
Ihr persönlicher Rückzugsort mit Outdoor-Wohngefühl
Stellen Sie sich vor, den Tag mit einem Kaffee auf der großzügigen Terrasse zu beginnen und den Abend entspannt im eigenen Garten ausklingen zu lassen. Genau dieses Lebensgefühl bietet Ihnen diese gepflegte Eigentumswohnung in einer beliebten und ruhigen Wohnanlage.
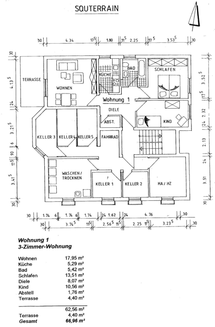
Auf rund 60 m² reiner Wohnfläche erwartet Sie eine durchdachte Raumaufteilung mit drei gut geschnittenen Zimmern, die vielseitige Nutzungsmöglichkeiten eröffnen – ideal für Singles, Paare, kleine Familien oder auch Kapitalanleger.
Die Wohnung überzeugt durch eine helle, freundliche Wohnatmosphäre und bietet gleichzeitig eine perfekte Kombination aus privatem Rückzugsort und praktischer Alltagstauglichkeit.
Ein besonderes Highlight ist die großzügige Terrasse mit Gartenanteil zur Sondernutzung. Hier entsteht Ihr persönlicher Wohlfühlbereich im Freien – perfekt für entspannte Stunden, gemütliche Grillabende oder einfach zum Abschalten nach einem langen Tag.
Lage
Bad Berka - Bartold-Asendorpf-Straße
Die Immobilie liegt in zentraler, gut angebundener Lage in Bad Berka (Thüringen), einem anerkannten Kurort im südlichen Weimarer Land und Teil der Metropolregion Mitteldeutschland. Bad Berka zeichnet sich durch eine ausgeprägte medizinische Versorgung und eine hohe Lebensqualität aus.
Die Zentralklinik Bad Berka, eine moderne Akut- und Fachklinik mit umfangreichem medizinischem Angebot, befindet sich nur wenige Geh-Minuten vom Objekt entfernt.
Die Autobahn A4 (Anschlussstellen Nohra und Weimar) ist in ca. 6 km erreichbar und gewährleistet eine schnelle Verkehrsanbindung an die umliegenden Regionen sowie die Bundesstraßen.
Bahnhof: Ca. 10 Minuten Fußweg
Die Kulturstadt Weimar liegt in unmittelbarer Nähe – sie ist über eine Bundesstraße in nur etwa 10 – 13 km bzw. rund 15–20 Minuten Fahrzeit zu erreichen.
Die Landeshauptstadt Erfurt befindet sich in ca. 24 – 26 km Entfernung (rund 25–30 Minuten mit dem Auto), wodurch ein breites Angebot an Arbeitsplätzen, Bildungseinrichtungen und Dienstleistungen schnell zugänglich ist.
Einkaufsmöglichkeiten, Schulen, Apotheken und gastronomische Angebote sind im Stadtzentrum von Bad Berka in wenigen Minuten erreichbar. Die Lage verbindet somit die Vorzüge einer ruhig gelegenen Wohnadresse mit sehr guter regionaler Anbindung.
Ausstattung
Ausstattung & Highlights
- aktuell frei
- ca. 62 m² reine Wohnfläche - ohne Terrasse
- 3 gut geschnittene Zimmer
- Große Terrasse mit viel Platz zum Entspannen
- Privater Gartenanteil zur Sondernutzung
- Eigener Stellplatz
- Keller
- Badezimmer mit Badewanne
- Laminat
- Gemeinschaftsraum für Waschmaschine|Trockner
- Baujahr 1996
- Sehr gepflegte Wohnanlage
- Hausmeisterservice für komfortables Wohnen
Gepflegte und ruhige Wohnanlage
Die Wohnung befindet sich in einer beliebten und sehr gepflegten Wohnanlage, die durch ihre ruhige Atmosphäre und eine angenehme Nachbarschaft überzeugt.
Dank des zuverlässigen Hausmeisterservices werden die gemeinschaftlichen Bereiche regelmäßig gepflegt und instand gehalten – ein großer Vorteil für Eigentümer und Bewohner, die Wert auf ein ordentliches und gepflegtes Wohnumfeld legen.
Fazit – Eine Wohnung mit Seltenheitswert
Diese Immobilie vereint komfortables Wohnen, eine attraktive Außenfläche und ein gepflegtes Umfeld in idealer Weise.
Ob zur Eigennutzung oder als wertstabile Kapitalanlage – diese Wohnung bietet Ihnen eine attraktive Gelegenheit, sich ein Zuhause mit besonderem Wohngefühl zu sichern.
✅ Interesse geweckt? Dann vereinbaren Sie gerne einen Besichtigungstermin und überzeugen Sie sich selbst von dieser charmanten Wohnung.
Interesse an dieser Immobilie?
Objektdetails
- Vermarktungsart:
- Kaufobjekt
- Objekttyp:
- Etagenwohnung
- Zimmer:
- 3
- Schlafzimmer:
- 2
- Badezimmer:
- 1
- Wohnfläche:
- 62 m²
- Zustand:
- Gepflegt
- Heizung:
- Zentralheizung
- Baujahr:
- 2000
- Energieverbrauch:
- 119.4 kWh/(m²·a)
- Energieträger:
- Erdgas
- Provision:
- 3,57 %inkl. 19% MwSt.
Lage
Bartold-Asendorpf-Str. 23
99438 Bad Berka

















